Vellezzo Bellini via Pavia
In evidenzaDescrizione
Castello storico in vendita a Giovenzano
A Giovenzano, nel territorio di Vellezzo Bellini, si trova questo castello risalente al XVI secolo, un tempo residenza di Lodovico Pallavicino di Scipione.
Conosciuto come “Il Gioiello“, l’edificio conserva l’impianto originario e si sviluppa intorno a una corte interna, con ambienti storici distribuiti su due livelli.
La proprietà è circondata da un parco privato che ne valorizza la riservatezza e l’atmosfera.
La posizione, tra Pavia e Milano, garantisce un facile accesso ai principali collegamenti senza rinunciare alla tranquillità della campagna.
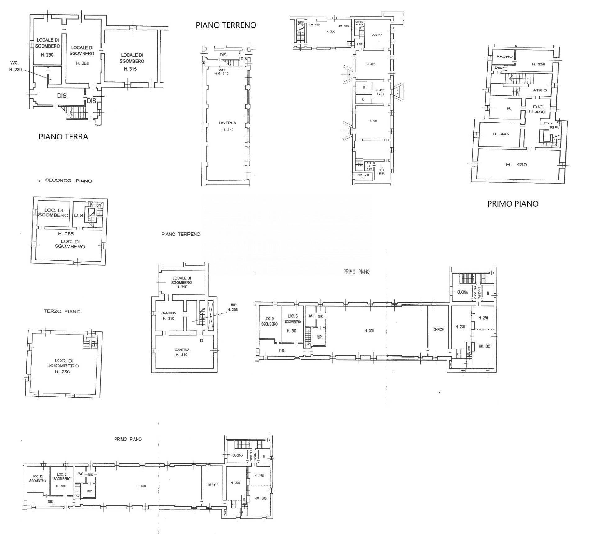
Spazi interniIl castello ha una superficie complessiva di circa 2.800 m², articolata in un corpo centrale a due piani e una torre a tre piani.
Gli interni includono ampi saloni affrescati, una cucina professionale e numerosi ambienti di rappresentanza.
Ai piani superiori si trovano cinque appartamenti, due sale per eventi e una mansarda.
La torre centrale e le aree private conservano elementi architettonici originali, che testimoniano il valore storico della residenza.
Spazi esterni e serviziIl castello è circondato da un parco privato di circa 5,5 ettari, con alberi secolari, vialetti, terrazze e aree a prato.
La corte interna è ideale per ricevimenti all’aperto, mentre il giardino valorizza l’accesso principale.
Nel cortile si trova anche una cappella privata.
Gli spazi esterni offrono scorci suggestivi ideali anche per servizi fotografici ed eventi privati.
Posizione e collegamentiIl Castello di Giovenzano si trova in Lombardia, in una zona collinare tra l’area rurale di Milano e il parco del Tichino.
La posizione garantisce tranquillità e riservatezza, pur restando ben collegata ai principali centri urbani.
Milano è raggiungibile in circa un’ora d’auto, mentre Pavia dista circa 30 minuti.
La rete autostradale e ferroviaria assicura collegamenti efficienti anche con l’aeroporto di Milano Linate, accessibile in meno di un’ora.
Indici di prestazione energetica
Classe Energetica: F
EPi/EPG:
Dettagli
-
Codice Immobile:CBI135-2837-2205
-
Superficie:2800.00 mq
-
Locali:14
-
Camere da letto:10
-
Bagni:8
-
Box:3
-
Prezzo:€5.900.000
-
Anno di costruzione:1500
-
Contratto:
-
Terrazzo:SI
-
Piano:Multipiano
-
Arredato:Non arredato
-
Piani Totali:3
-
Riscaldamento:Autonomo
-
Stato attuale:Libero al rogito
-
Cucina:Abitabile
-
Posto auto:Coperto
-
Allarme:SI


