Peschiera Borromeo Vittorio Emanuele II
In evidenzaDescrizione
Villa in vendita a Peschiera Borromeo – Ampi spazi, tranquillità e comfort In una zona tranquilla e riservata di Peschiera Borromeo, proponiamo in vendita una raffinata villa indipendente edificata agli inizi degli anni ’90. La posizione, immersa nel verde e comoda per i principali collegamenti, rende questa soluzione ideale per chi cerca privacy senza rinunciare ai servizi.
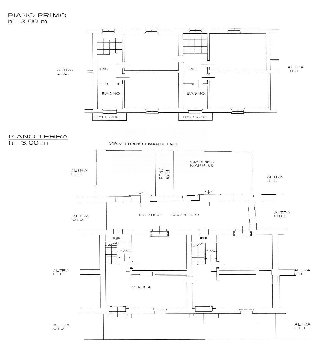
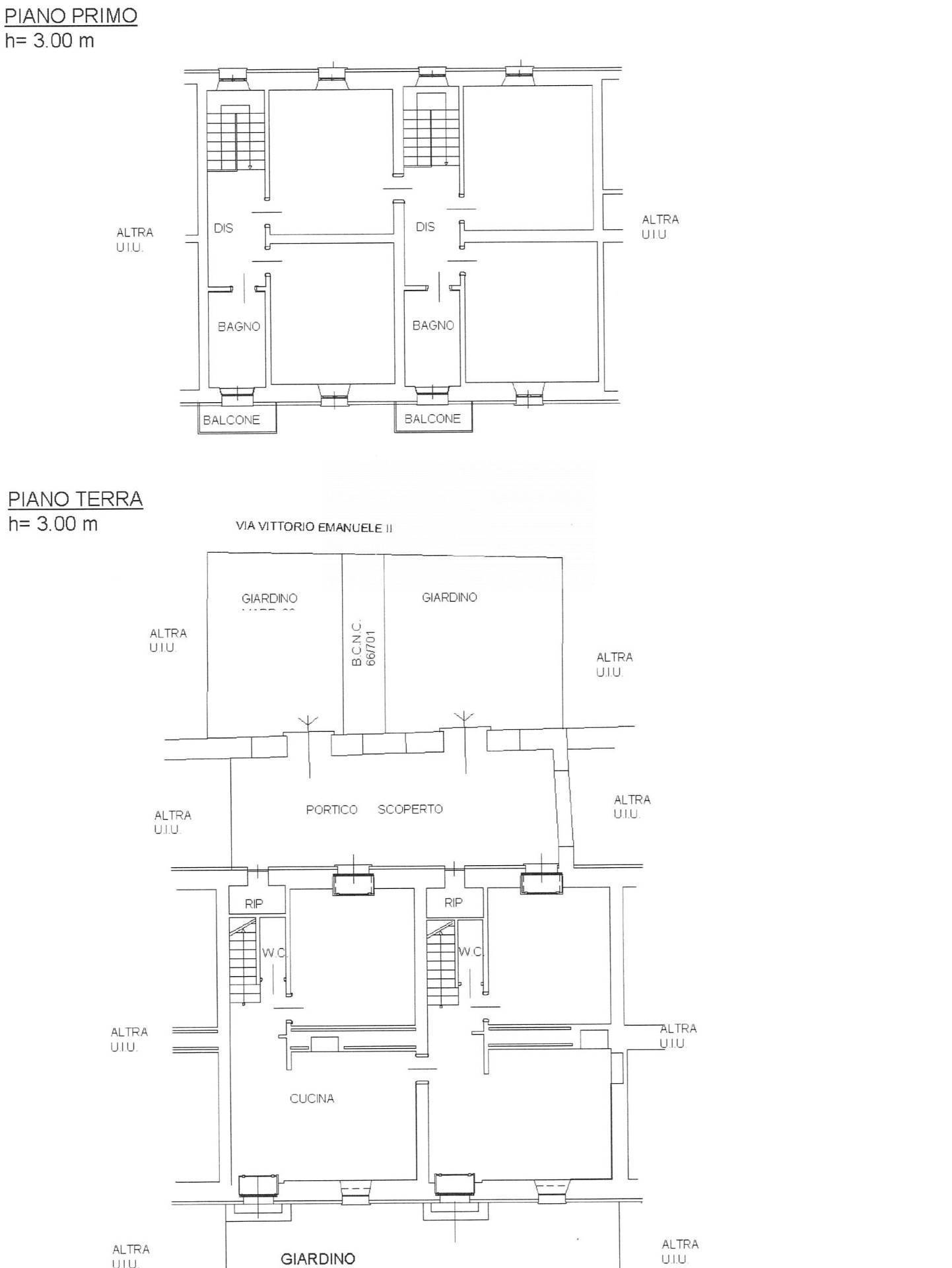
Spazi InterniLa villa si sviluppa su due livelli ben distribuiti:
- Piano Terra: all’ingresso ci accoglie un’ampia zona living con accesso al meraviglioso giardino privato, immerso nel verde con rigogliose piante in fiore, una sala da pranzo, una cucina abitabile, dotata di ogni comfort, un comodo studio e due bagni di servizio
- Primo Piano: mediante una comoda scala interna saliamo al piano superiore, dove possiamo trovare quattro spaziose camere da letto e due ulteriori bagni con balcone.
Gli ambienti, luminosi e ben organizzati, si presentano in ottime condizioni interne e garantiscono una vivibilità ideale anche per famiglie numerose.
La proprietà è arricchita da un grazioso giardino privato di 175 mq, ricco di vegetazione e perfetto per chi desidera uno spazio verde da vivere in totale relax.
Posizione e collegamenti L’area è ben servita e facilmente collegata alle principali arterie stradali e ai comuni limitrofi.
Sono presenti linee autobus per San Donato M3 (come la 902) e il servizio ATM ChiamaBus, che consente spostamenti flessibili all’interno del comune e verso le metropolitane e la stazione di Segrate. Comodi anche i collegamenti con Milano, San Donato Milanese, Segrate, Pioltello, Rodano, Mediglia e Pantigliate.
Indici di prestazione energetica
Classe Energetica: F
EPi/EPG:
Dettagli
-
Codice Immobile:CBI135-1878-2770
-
Superficie:323.00 mq
-
Locali:10
-
Camere da letto:4
-
Bagni:4
-
Prezzo:€690.000
-
Anno di costruzione:1942
-
Contratto:
-
Balcone:SI
-
Piano:Su due livelli
-
Arredato:Non arredato
-
Piani Totali:2
-
Riscaldamento:Autonomo
-
Stato attuale:Libero al rogito
-
Cucina:Abitabile


