Gropparello Via Vicini
In evidenzaDescrizione
Castello di Montechino: Un’autentica dimora medievale nei Colli Piacentini
Il Castello di Montechino, edificato nel XII secolo, domina il Monte Occhino a 515 m di altitudine, tra la Val Riglio e la Val Nure. Antico avamposto lungo la Via Francigena e residenza nei secoli di famiglie nobili quali i Confalonieri, i Nicelli e i Farnese, questo maniero è oggi una residenza privata di rara eleganza, restaurata con cura negli ultimi venticinque anni per mantenere intatta la sua struttura originaria, coniugando il fascino delle storiche dimore toscane e delle maisons provenzali.
Gli spazi del Castello
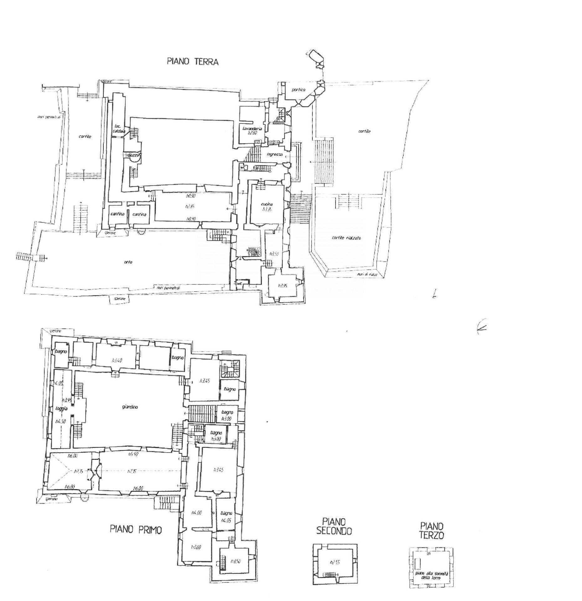
La proprietà si sviluppa su circa 1.100 mq distribuiti su più livelli:
- Piano terra: Un viale alberato conduce al cancello principale e all’ingresso del castello. Qui si apre la corte interna, cuore della dimora, dominata da un ulivo secolare. Dal cortile si accede ai grandi ambienti di rappresentanza: i saloni con camini in pietra, pavimenti in parquet e soffitti a travi a vista, ideali come sale di ricevimento. La spaziosa cucina in stile provenzale, con camino e forno a legna, richiama l’atmosfera delle antiche dimore padronali, mentre le cantine voltate in pietra e il pozzo interno completano il piano, conservando l’autenticità medievale.
- Piano primo: Al livello superiore si sviluppano ambienti eleganti e accoglienti. La biblioteca-studio, impreziosita da librerie in mogano e camino, si affianca ad altri spazi raffinati come la sala da tè e il salotto privato. La zona notte comprende camere luminose, con soffitti a travi, camini originali e bagni privati, che offrono il massimo comfort pur mantenendo un sapore storico.
- Piano secondo: Qui si trovano ulteriori camere e servizi, adatti sia come spazi privati della famiglia sia per ospiti. Alcune stanze offrono vedute spettacolari sulla vallata, rendendo ogni ambiente un luogo di quiete e contemplazione.
- La torre: Attraverso una scala in legno si raggiunge la torre panoramica: da qui si domina l’intera vallata con una vista suggestiva che abbraccia colline, boschi e i profili dei colli piacentini.
Gli edifici accessori e il parco
All’interno del parco privato di circa 27 ettari si estendono orti botanici, prati, alberi secolari e boschi.
Due unità indipendenti completano la proprietà: una casa colonica di 300 mq e una residenza di 200 mq destinata ai custodi. All’ingresso del parco si trova inoltre una rimessa, funzionale al servizio della tenuta.
Il castello, interamente restaurato e dotato di impianto di riscaldamento a metano, è utilizzabile in ogni stagione. La sua posizione, a soli 30 minuti dall’autostrada di Piacenza, lo rende facilmente raggiungibile da Milano, Parma e Bologna, mantenendo al contempo un’atmosfera riservata e immersa nella natura.
Indici di prestazione energetica
Classe Energetica: G
EPi/EPG:
Dettagli
-
Codice Immobile:CBI135-2837-2204
-
Superficie:1100.00 mq
-
Locali:12
-
Camere da letto:8
-
Bagni:8
-
Box:2
-
Prezzo:€3.450.000
-
Anno di costruzione:1200
-
Contratto:
-
Piano:Su due livelli
-
Arredato:Non arredato
-
Piani Totali:3
-
Riscaldamento:Autonomo
-
Stato attuale:Libero al rogito
-
Cucina:Abitabile
-
Posto auto:Coperto
-
Allarme:SI


